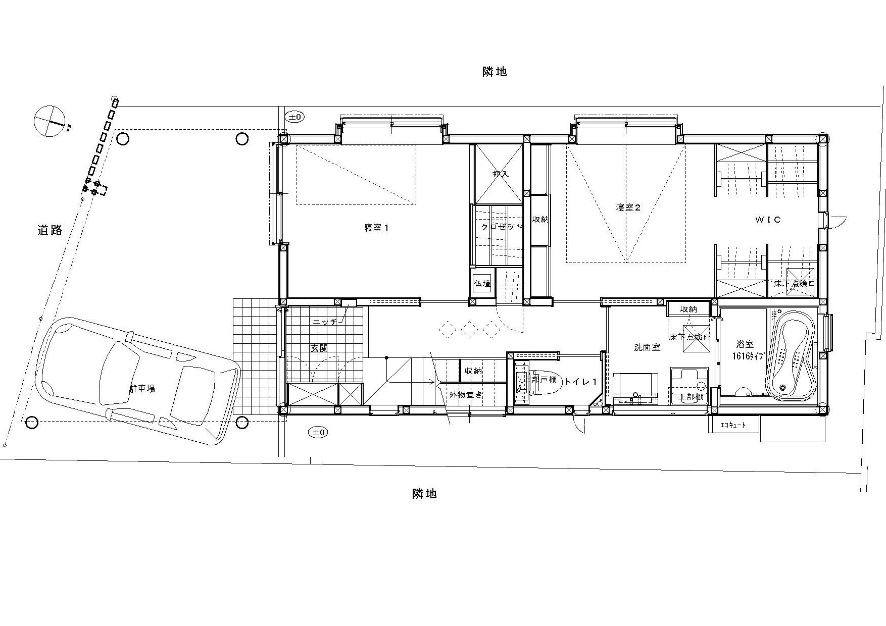
一階平面図
1階は親と夫婦の寝室の個室と、洗面所、風呂の水周りを設置しました。夫婦寝室にはオープンのクローゼットを繋げ、時間をかけて打ち合わせをして無駄の無い収納としました。狭小住宅ではありますが、生活に必要十分な間取りを心掛けました。

       
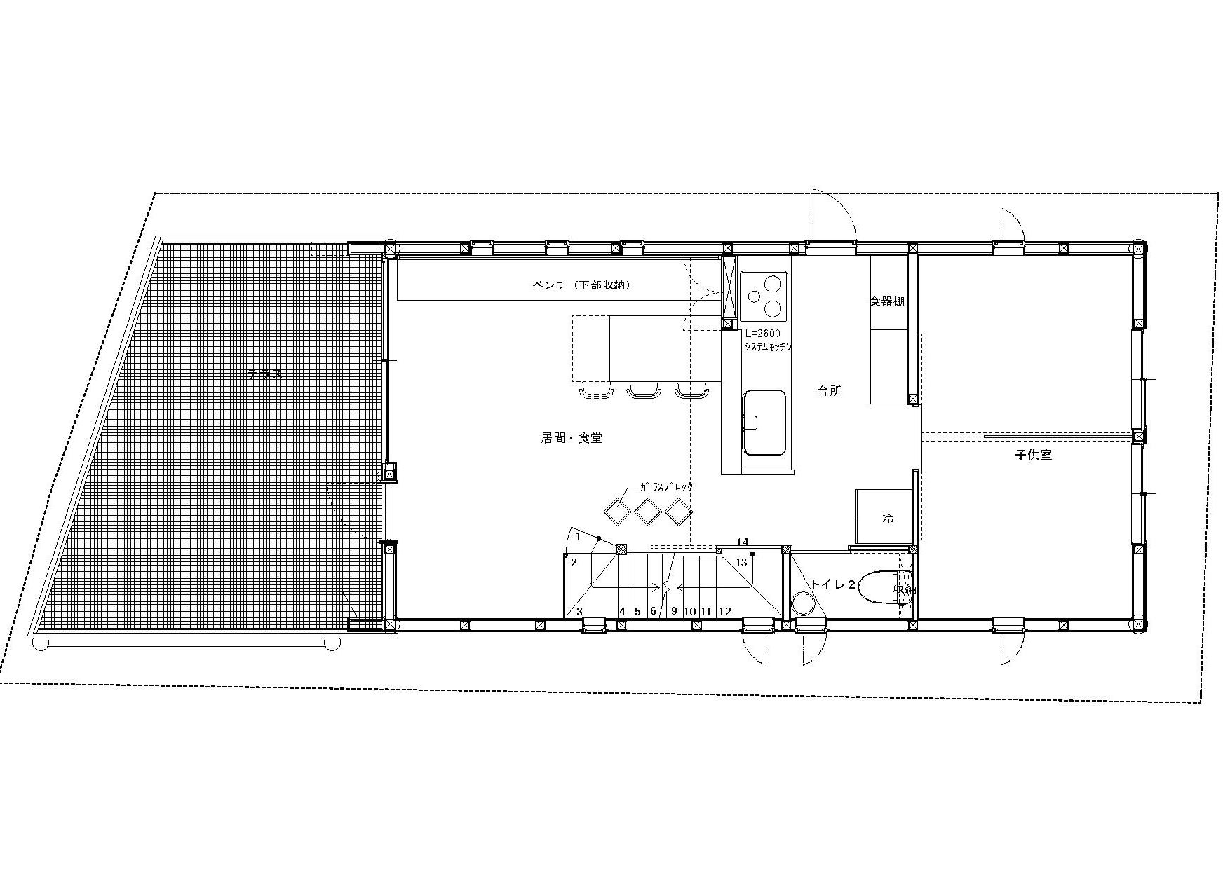
ニ階平面図 
2階は生活の中心となる居間、食堂、台所と子供室を設けました。天井を吹き抜けとし空間がロフトへ繋がることにより面積以上に広がりを感じることを心掛けました。直接階段からのアプローチになりますが、冷暖房を考慮してガラス戸とガラスの嵌め殺しで区画をし、視覚的にはオープンな感じにしました。又、ベランダは建築面積に算入されないように全面グレーチングとしました。このベランダが部屋に広がりを提供してくれます。
                
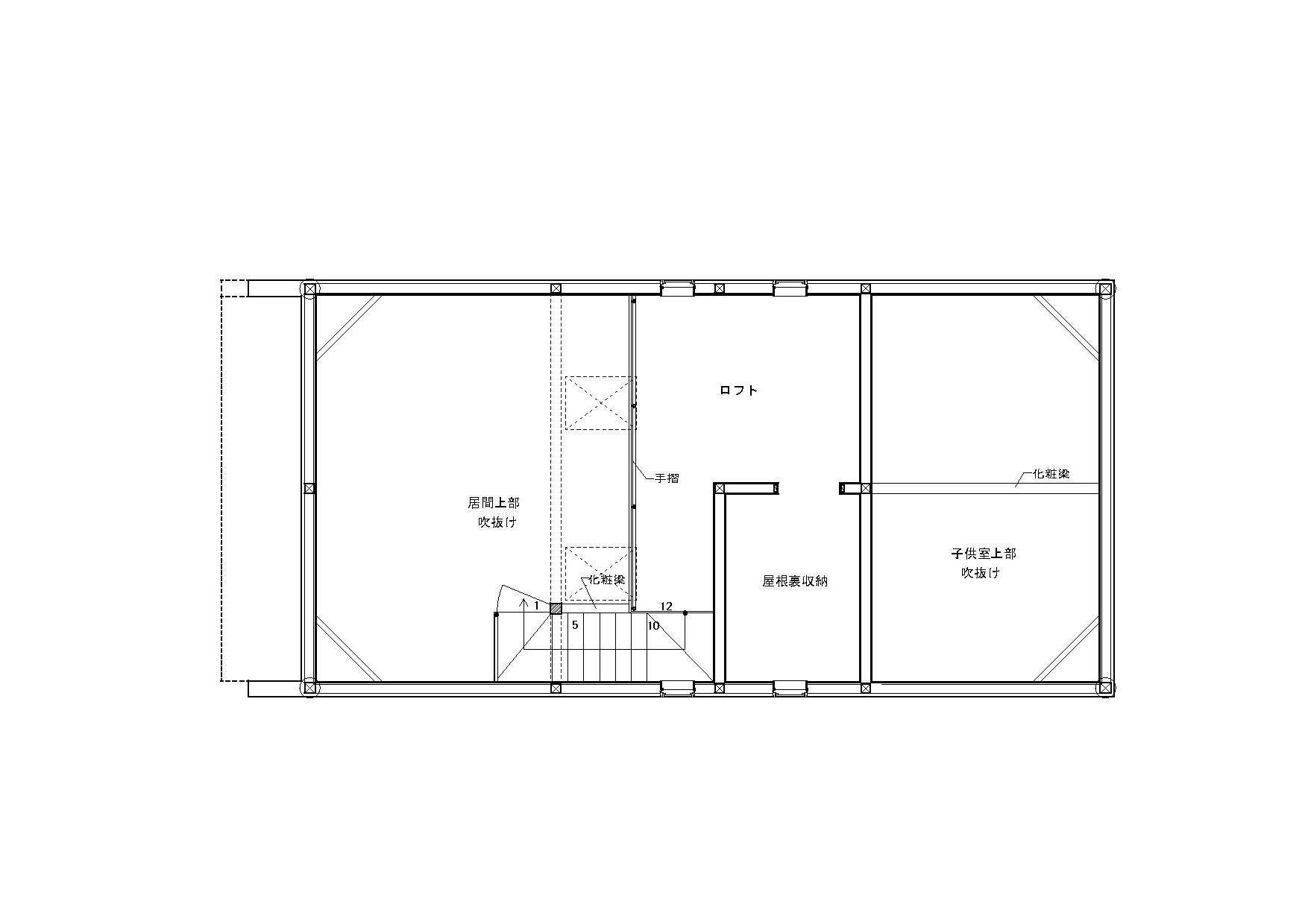
ロフト階平面図 
ロフトは収納と書斎の機能を担っています。又、トップライトは開閉式ですが、コストを下げる為に手動式としこのロフトから安全に操作が可能です。

                       

 


 

ホームページ 住宅の実例 経歴 設計に対する考え 日々雑感 なし