![]() |
| 一階平面図 一階は母親のスペースと、共用である洗面所、浴室、和室を設けました。 母親のスペースは、玄関→居間→寝室→廊下→玄関という流れを作り 将来この内側の壁に手摺を設けることにより、生活がスムーズに営まれる ことを考慮しました。 |
![]() |
| ニ階平面図 二階は子世帯のスペースで、居間はテラスに面して木製の建具とし、全て 両側の壁に引き込み開放できる様にしました。 |
|
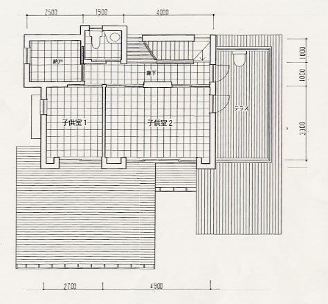
| 三階平面図 三階は子供(3人)のスペースとし、まだ小さい男の子二人の部屋は共用と していますが、将来区切れる様に入り口を2箇所設けました。この階に設けた テラスは生活用のテラスで、洗濯物を干したり、靴を洗ったりします。 |